Что такое ИСКАН
КАК ЭТО БУДЕТ... ПО-РУССКИ?
Чтобы проще было понять, аналог ИСКАНа в России — ТЕХНИЧЕСКИЙ ПАСПОРТ.
Он содержит подробное техническое описание недвижимости.
ИСКАН (искен, искян) — акт сдачи дома в эксплуатацию в Турции. Это документ который застройщик обязан оформить на здание или комплекс зданий за свой счет, в сроки указанные в разрешении на строительство и в техническом паспорте на здание (ЯПЫ РУСАТ).
ВАЖЕН ЛИ ИСКАН ПРИ ПОКУПКЕ НЕДВИЖИМОСТИ В ТУРЦИИ?
Да, ИСКАН — безусловно важный документ.
По значимости — на одном уровне с ТАПУ (свидетельством о собственности)
Без ИСКАНа нет возможности оформить отдельный акт сдачи квартиры или виллы в эксплуатацию, а это грозит в будущем штрафными санкциями для покупателя такой недвижимости в Турции.
БЕЗ ИСКАНа ОБЪЕКТ ЛУЧШЕ НЕ ПОКУПАТЬ?
Приобретать можно, особенно на этапе строительства.
НА ЧТО ОБРАТИТЬ ВНИМАНИЕ ПРИ ПОКУПКЕ ОБЪЕКТА НЕДВИЖИМОСТИ БЕЗ ИСКАНа?
Договор купли-продажи, в котором прописано:
— дом не сдан в эксплуатацию (нет акта сдачи дома в эксплуатацию );
— примерные сроки получения этого акта;
— ответственность застройщика при несоблюдении этих сроков — до расторжения сделки, с выплатами штрафов покупателю.
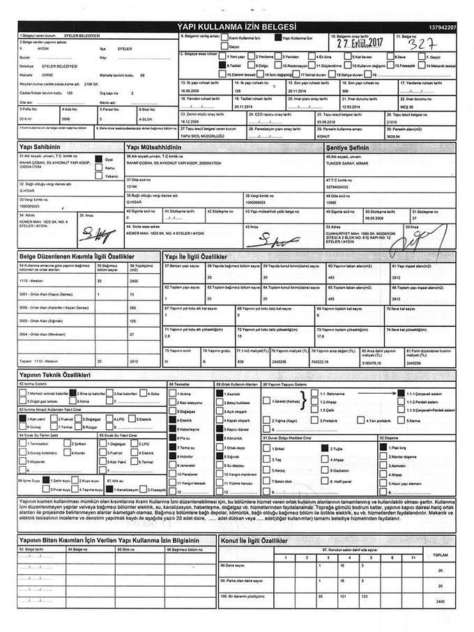
КАК Я ПОЙМУ, ЧТО ПЕРЕДО МНОЙ ИСКАН? КАКИЕ ЕГО ВИДЫ СУЩЕСТВУЮТ?
ИСКАН выглядит как обычный лист (не на бланке), поделенный на множество таблиц, где вписаны все данные о Вашей квартире, а также о доме в целом: материал, характеристики дома и земельного участка и т.д.).
На обороте — подпись и печать беледие.
Бывают:
Генель ИСКАН — акт сдачи здания в эксплуатацию;
Ферди ИСКАН — акт сдачи квартиры в эксплуатацию. Сейчас Ферди ИСКАН не обязательный документ. Оформление абонентского договора, подключение воды, электричества, телефона, интернета и т.п. происходит по Генель ИСКАНу.
ВАЖНО!!!
Если дом находится в стадии 100%-ной готовности, а ИСКАНа нет, задумайтесь о приобретении данного объекта недвижимости.
Получите консультацию у компетентных специалистов.
ИСКАН на здание (Генель) выглядит так:

